RESIDENZA LUCCIOLA - RICCIONE ALBA MARE

RESIDENZA LUCCIOLA - RICCIONE ALBA MARE

In vendita
3 locali
Riccione (Centro mare)
470.000 €
Descrizione
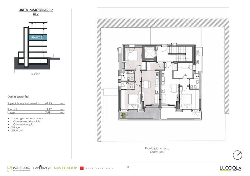
Riccione : Appartamento di nuova costruzione posto al piano Terzo. L' appartamento ubicato a pochi passi dal mare e dal centro di Riccione è composto da ampia zona giorno con angolo cottura, da cui si accede alla loggia scoperta praticabile anche per pranzo, 1 camere da letto matrimoniale servita da bagno esclusivo e 1 camera doppia servita da balcone . Un concept residenziale innovativo, un nuovo modo di rilassarsi senza rinunciare alle infinite possibilità di divertimento offerte dalla Riviera Romagnola. Le soluzioni abitative sono realizzate con finiture moderne e di pregio.
L’attenzione verso soluzioni architettoniche ed impiantistiche volte all’efficientamento energetico, la scelta di soluzioni domotiche di
ultima generazione per la gestione del comfort abitativo e la cura dei dettagli rendono il progetto immobiliare unico e innovativo.
Possibilità di acquistare Posto Auto esclusivo sito al Piano seminterrato.
Per ulteriori informazioni contattare la Capodagli re Advisory al numero 0541-410059
CONSEGNA PREVISTA DICEMBRE 2026
INTERVENTO CHE GODE DEL SISMA-BONUS ACQUISTO 2026
Caratteristiche principali
Codice:
A 358 UI7
Città:
Riccione (Centro mare)
Categoria:
3 locali
Locali:
3
Camere:
2
Bagni:
2
Mq:
77,04
Balconi:
1
Terrazzi:
1
Piano:
3
Anno:
2025
Classe energetica:
A4
Stato Immobile:
Prossima Realizzazione
Grado:
Signorile
Posizione:
Mare
Lati Liberi:
3
Giardino:
No
Arredi:
Non Arredato
Tipo Soggiorno:
Soggiorno
Tipo Cucina:
A Vista
Riscaldamento:
Autonomo
Tipo Riscaldam.:
Pompa di Calore
Tipo Impianto:
Aria
Fonte Energetica:
Elettrico
Acqua Calda:
Autonoma
Raffrescamento:
Split
Infissi:
PVC Triplo Vetro
Serramenti:
Nuovo
Persiana:
Tapparella PVC
Pavim. Giorno:
Gres Porcellanato
Pavim. Notte:
Gres Porcellanato
Pavim. Cucina:
Gres Porcellanato
Pavim. Bagno:
Gres Porcellanato
Accessori
Antifurto
Aria Condizionata
Ascensore
Impianto Domotica
Impianto Fotovoltaico
Pannelli Solari
Porta Blindata
Tapparelle Elettriche
Tripli Vetri
Video Citofono
Mappa
viale palestrina, 16 - Riccione (RN)
Distanze
Posizione
Centro1,2 km
Mare200 m
Mezzi di trasporto
Aeroporto3,3 km
Porto900 m
Stazione dei treni1,4 km
Altri servizi
Ospedale2 km
Cookie preference