RESIDENZA LUCCIOLA- RICCIONE ALBA MARE

RESIDENZA LUCCIOLA- RICCIONE ALBA MARE

In vendita
3 locali
Riccione (Centro mare)
390.000 €
Descrizione
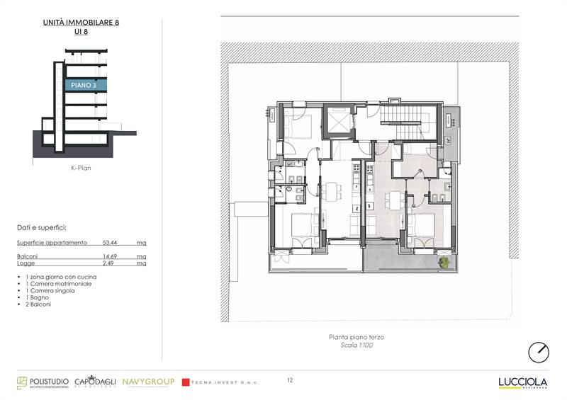
Riccione : Appartamento di nuova costruzione posto al piano Terzo. L' appartamento ubicato a pochi passi dal mare e dal centro di Riccione è composto da ampia zona giorno con angolo cottura da cui si accede alla loggia scoperta praticabile anche per pranzo, 1 camera da letto matrimoniale, 1 bagno, 1 camera singola servita da balcone. Un concept residenziale innovativo, un nuovo modo di rilassarsi senza rinunciare alle infinite possibilità di divertimento offerte dalla Riviera Romagnola. Le soluzioni abitative sono realizzate con finiture moderne e di pregio.
L’attenzione verso soluzioni architettoniche ed impiantistiche volte all’efficientamento energetico, la scelta di soluzioni domotiche di
ultima generazione per la gestione del comfort abitativo e la cura dei dettagli rendono il progetto immobiliare unico e innovativo.
Possibilità' di acquistare Posto Auto scoperto al piano seminterrato.
Per ulteriori informazioni contattare la Capodagli re Advisory al numero 0541-410059
CONSEGNA PREVISTA DICEMBRE 2026
INTERVENTO CHE GODE DEL SISMA-BONUS ACQUISTO 2026
Caratteristiche principali
Codice:
A 358 UI8
Città:
Riccione (Centro mare)
Categoria:
3 locali
Locali:
3
Bagni:
1
Mq:
64,25
Balconi:
1
Terrazzi:
1
mq Terrazzo:
14,69
Piano:
3
Anno:
2025
Classe energetica:
A4
Stato Immobile:
Prossima Realizzazione
Grado:
Signorile
Posizione:
Mare
Panorama:
Vista Aperta
Lati Liberi:
3
Giardino:
No
Arredi:
Non Arredato
Tipo Soggiorno:
Soggiorno
Tipo Cucina:
A Vista
Riscaldamento:
Autonomo
Tipo Riscaldam.:
Pompa di Calore
Tipo Impianto:
Aria
Fonte Energetica:
Elettrico
Acqua Calda:
Autonoma
Raffrescamento:
Split
Infissi:
PVC Triplo Vetro
Serramenti:
Nuovo
Persiana:
Tapparella PVC
Pavim. Giorno:
Gres Porcellanato
Pavim. Notte:
Gres Porcellanato
Pavim. Cucina:
Gres Porcellanato
Pavim. Bagno:
Gres Porcellanato
Accessori
Antifurto
Aria Condizionata
Ascensore
Impianto Domotica
Impianto Fotovoltaico
Pannelli Solari
Porta Blindata
Tapparelle Elettriche
Tripli Vetri
Video Citofono
Mappa
viale palestrina, 16 - Riccione (RN)
Distanze
Posizione
Centro1,2 km
Mezzi di trasporto
Aeroporto3,3 km
Porto900 m
Stazione dei treni1,4 km
Altri servizi
Ospedale2 km
Cookie preference