NUOVA REALIZZAZIONE - I GIARDINI DEL PORTO

NUOVA REALIZZAZIONE - I GIARDINI DEL PORTO

In vendita
3 locali
Riccione (Porto)
415.000 €
Descrizione
NUOVA REALIZZAZIONE - I GIARDINI DEL PORTO

La residenza “Giardini del Porto” verrà edificata in zona di grande pregio, in posizione ottimale per raggiungere il mare, a pochi passi da Viale Ceccarini, dal Porto Canale, e da Viale Dante. L’edificio condominiale che sorgerà permetterà di vivere in un contesto abitativo immerso nel verde, adiacente al giardino “Nicola Casali”, sindaco di Riccione negli anni ’50, in una zona caratterizzata dalla vicinanza a tutti i principali servizi, dal centro, seppur godendo della posizione appartata e silenziosa. Le unità abitative saranno 13, distribuite su quattro piani fuori terra, tutte con autorimesse o posti auto di proprietà; le residenze al piano terra saranno corredate di giardini in uso esclusivo, quelle ai piani intermedi di balconi abitabili in parte loggiati. I due attici, poi, oltre alle generose dimensioni degli spazi interni, godranno di terrazzi con vista sulle verdeggianti chiome delle alberature circostanti. Le tipologie abitative sono state accuratamente studiate, al fine di soddisfare il desiderio e le necessità di spazi di chi si affaccia all’acquisto di una residenza al mare o come dimora abituale.

Il capitolato, la cui redazione è in fase di ultimazione, prevede:
- progettazione sostenibile improntata all’efficienza energetica;
- particolare attenzione all’ isolamento termico ed acustico;
- Gas Free;
- Impianto fotovoltaico dedicato;

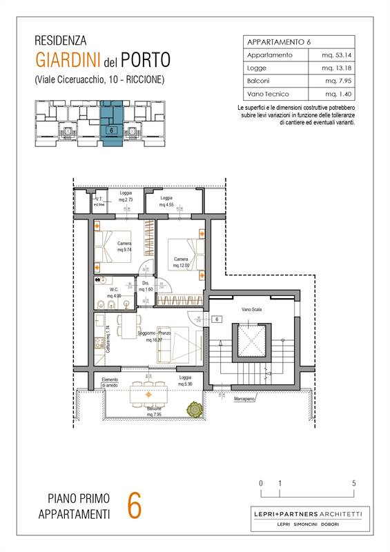
Appartamento in oggetto sito al piano primo servito da ascensore composto da ingresso su ampio soggiorno con angolo cottura, due camere da letto matrimoniali, bagno, logge e balconi vivibili per c.ca 22 mq.
Garage al piano semi interrato e/o posti auto scoperti acquistabili separatamente.
Ufficio Vendite:
Riccione Immobiliare 3336677733
CapodagliREAdvisory 3409001492
Caratteristiche principali
Codice:
A 359 UI6
Città:
Riccione (Porto)
Categoria:
3 locali
Locali:
3
Bagni:
1
Mq:
67,04
Box:
1
Mq Box:
35
Posti auto:
1
Balconi:
2
Mq Balcone:
9,35
Piano:
1
Classe energetica:
A4
Stato Immobile:
Prossima Realizzazione
Grado:
Signorile
Posizione:
Centro
Panorama:
Vista Aperta
Lati Liberi:
2
Giardino:
No
Arredi:
Non Arredato
Tipo Soggiorno:
Soggiorno
Tipo Cucina:
A Vista
Riscaldamento:
Autonomo
Tipo Riscaldam.:
Pompa di Calore
Tipo Impianto:
Aria
Fonte Energetica:
Fotovoltaico
Acqua Calda:
Autonoma
Raffrescamento:
Split
Infissi:
Metallo Triplo Vetro
Serramenti:
Nuovo
Persiana:
Tapparella PVC
Accessori
Aria Condizionata
Cancello Elettrico
Doppi Vetri
Impianto Domotica
Impianto Fotovoltaico
Pannelli Solari
Porta Blindata
Tapparelle Elettriche
Tripli Vetri
Video Citofono
Zanzariere
Mappa
Viale ciceuracchio, 10 - Riccione (RN)
Cookie preference